 
		Nissho インナーアミド 商品仕様
インナーアミドの仕様図
上面図
- 
				片引き

- 
				両引き

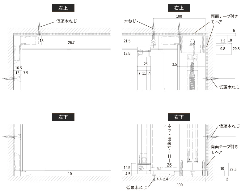
断面図
- 
				片引き・両引き
 
				正面図
- 
				片引き

- 
				両引き

 
		網戸教室
- 
			購入前の準備  
- 
			商品選びのポイント  
- 
			網戸の使い方・コーディネート  
- 
			お手入れ・トラブル対策  
- 
			網戸の豆知識  
 
		

 
				

 
		 
			 
			 
			 
			 
			カテゴリメニュー
 
        PICK UP
おすすめ商品
 
                     
                     
                     
                     
                    